calculate Vuoi visionare di persona l'immobile?
San Carlo all'Arena - Via della Veterinaria
65.000,00 €
Indirizzo
location_on Via della Veterinaria, X
domain Napoli(San Carlo all'Arena)
Descrizione
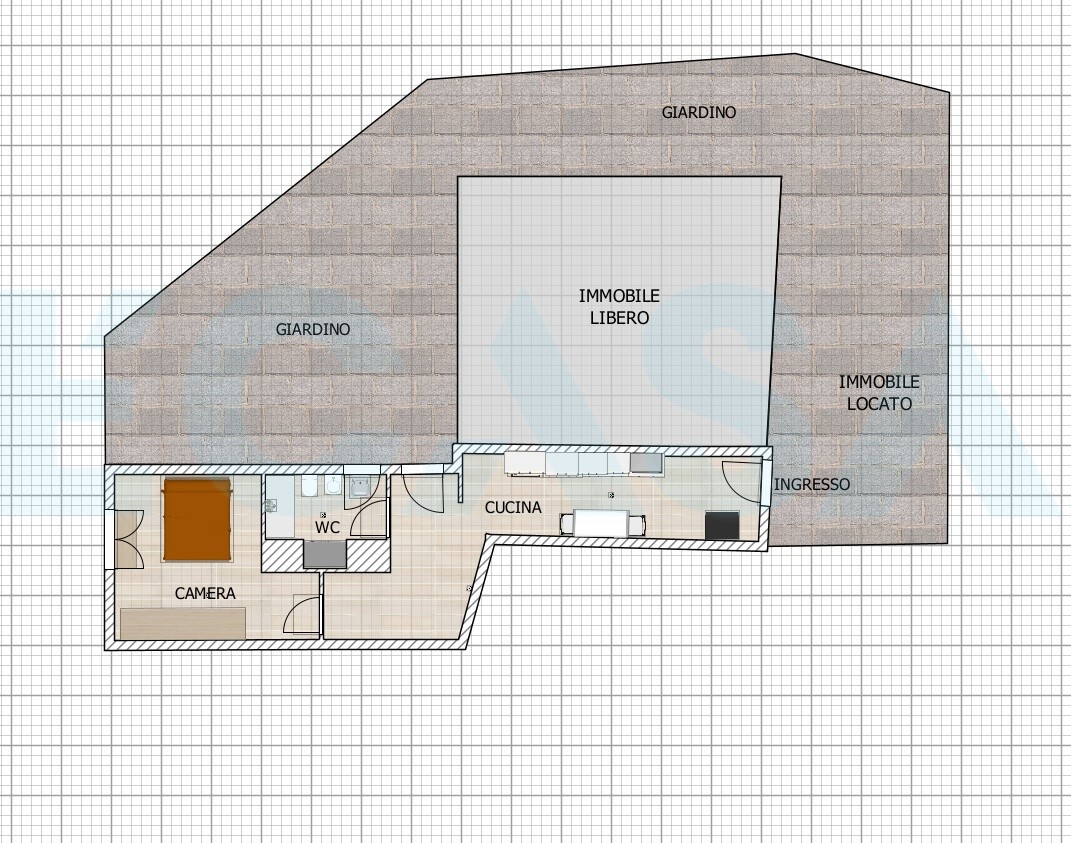
Sei alla ricerca di una soluzione al centro, da adibire ad uso investimento e sin da subito? Ecco quello che cercavi! ÉCASA propone in vendita a Napoli, precisamente in Via della Veterinaria (Zona Santa Maria degli Angeli - San Carlo all'Arena), una soluzione semi-indipendente sita al piano terra di circa 40mq con giardino di proprietà. L'immobile è così composto: ingresso in cucina semi-abitabile, ampio disimpegno, camera da letto e bagno. N.B. La proprietà è già locata e produce una rendita annua di €4.800,00. Inoltre c'è la possibilità di acquistare anche l'immobile adiacente, con metratura e caratteristiche simili. Visionabile ogni giorno previo avviso telefonico. Ape all'atto definitivo. Ti ricordiamo, che oltre alle consulenze immobiliari, offriamo GRATIS: Consulenza Creditizia e Consulenza Ipo-Catastale. Cosa aspetti? CHIAMACI!! ÉCASA, C.so Secondigliano, 501 - Napoli Telefono: 081 188 179 41 Cell. & WhatsApp: 324 538 3003 E-mail: info@ecasaimmobiliare.net
Caratteristiche
Planimetria e Documenti
Agente
Consulenza Finanziaria
Vuoi una consulenza finanziaria?
Hai bisogno di aiuto per il finanziamento? I nostri esperti ti aiuteranno a trovare la soluzione più adatta per il tuo progetto immobiliare.





















